型 號:M-L1微型起重機
規 格:90kg~905kg
公司名稱:龍海起重
保質周期:24
價 格(≤ 1) ¥電議 /臺
優惠價格(≥ 5):電議
微型起重機又叫迷你型起重機,小型起重機,體積小,自重輕,攜帶方便,最大承重量905kg,最大提升量6.1m,適合狹小空間物料起重提升工作。


微型起重機產品詳情:
1. 微型起重機體積小,自重輕,可用于空間比較小的場合使用;
2. 此款迷你型起重機帶有安全鎖定裝置,動臂上帶有雙重安全擋塊,安全系數達1.5倍;
3. 微型起重機采用鐵制聚氨酯車輪,粉末涂層防護,室內室外均可使用;
微型起重機采用高品質電池電源,可移動,吊臂可伸縮,使用方便。

| 型號 | 起吊角度 | 緊湊寬度 | 緊湊型基礎長度 | 最大承重量 | 最小承重量 | 提升高度 | 自重 | 黃色運輸板重 | 電池電源 | 鋼絲繩 | 鋼絲繩線徑 | 提升速度 |
| M-L1 | 0~65° | 762mm | 1830mm | 905kg | 90kg | 0~6.1m | 816kg | 136kg | 24V | 30m | 7.9mm | 9m/min |


溫馨提示:微型起重機詳細產品介紹及產品參數請咨詢我公司銷售人員。

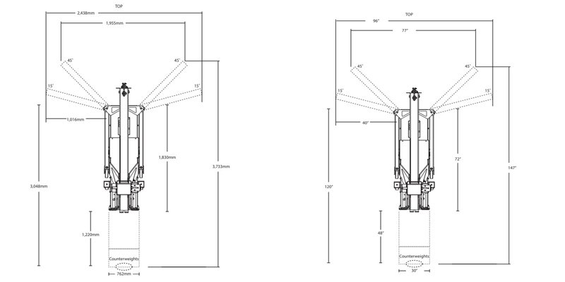
微型起重機不同方位產品展示:

微型起重機實物圖片:


微型起重機產品經過CE認證、符合合OSHA,ASME,PALD標準,可保質2年,保質期內出現任何非錯誤操作造成的質量問題均可免費維修、調換。煙臺開發區龍海起重秉承“以質量求生存,以誠信求發展”的經營理念,力爭給大家提供高質量起重產品,廣大客戶可放心購買,更多產品詳情請咨詢我公司銷售人員。
返回首頁龍海起重高端品牌官網:http://m.cpsholdings.com.cn/